来源: 作者:陈小陈
2022-04-03 08:34:57
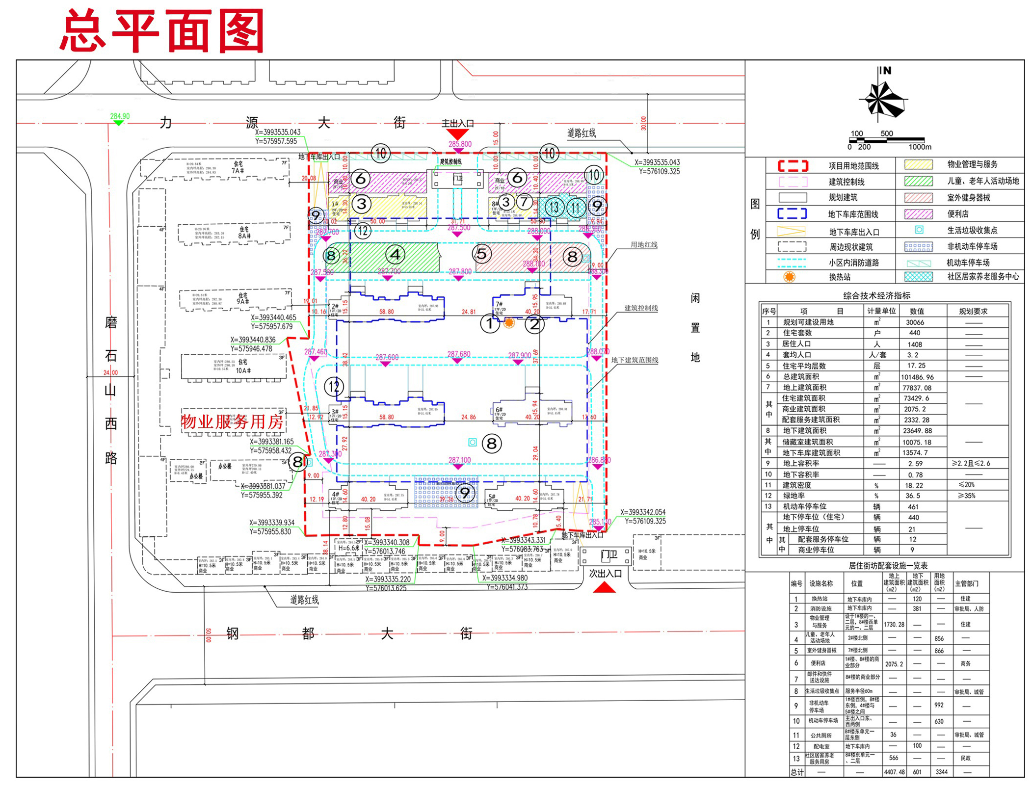
近日,小编从济南市自然资源和规划局网站了解到,钢城区汶源街道洪沟社区居民委员会城中村改造项目建设工程规划许可批前公示牌下发,项目位于钢城区钢都大街以北、磨石山西路以东,具体如下:

项目名称:钢城区汶源街道洪沟社区居民委员会城中村改造项目
建设位置:钢城区钢都大街以北、磨石山西路以东
建设单位:济南市钢城区汶源街道洪沟社区居民委员会
设计单位:济南宏强建筑设计有限公司
建设工程规划许可证号:370117202200230
许可证核发日期:2022年3月30日
公告期限:2022年4月2日至竣工规划核实结束








