来源: 作者:陈小陈
2022-03-18 10:44:38
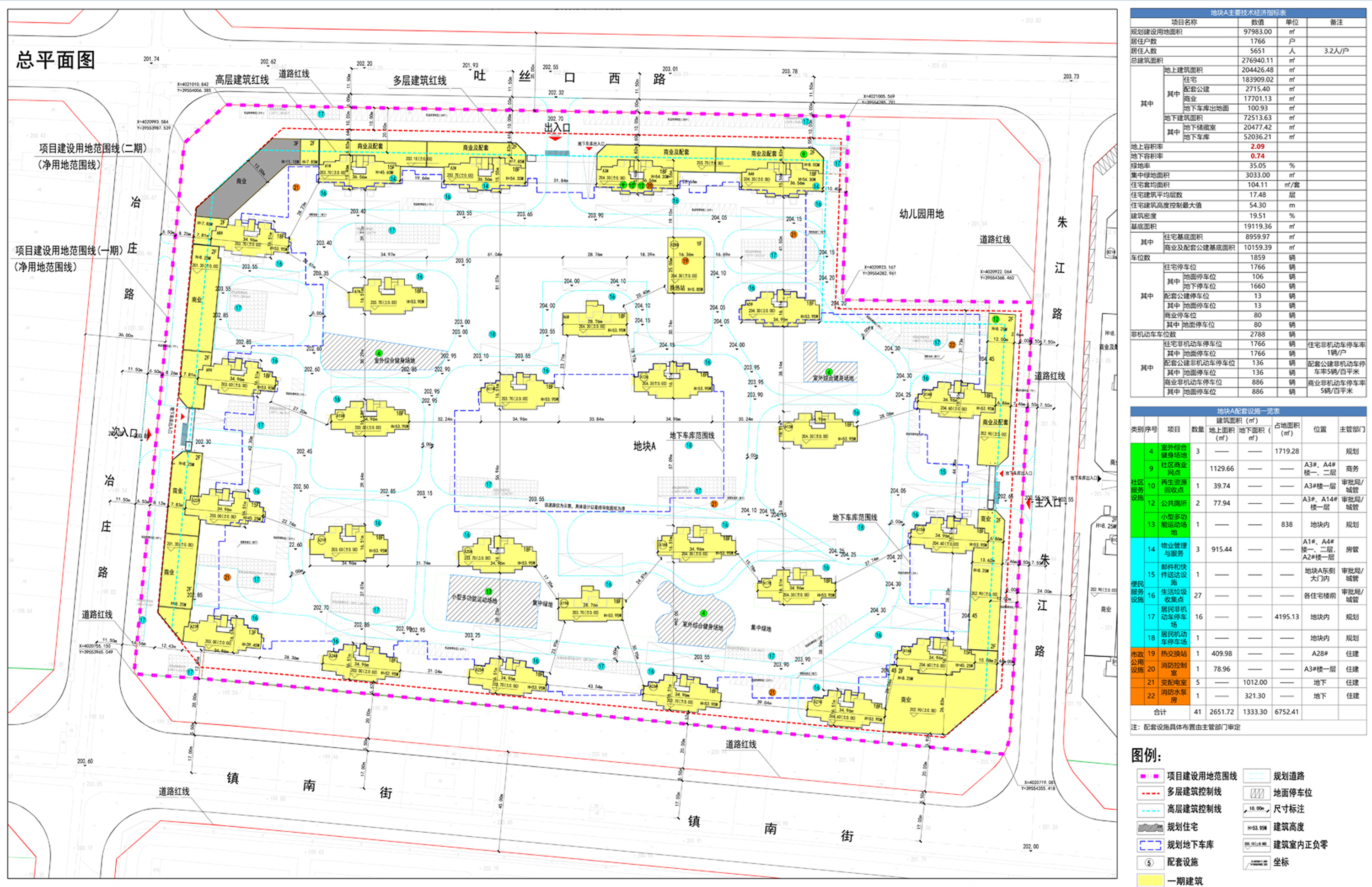
近日,莱芜在线小编从济南市自然资源和规划局网站了解到,山东重工(济南莱芜)绿色制造产业城口镇北街片区居民安置项目地块A(一期)建设工程规划许可批后公示下发,项目位于山东省济南市莱芜区吐丝口西路以南,汇林大街以北,冶庄路以东,莱城大道以西。具体如下:

项目名称:山东重工(济南莱芜)绿色制造产业城口镇北街片区居民安置项目地块A(一期)
设计单位:山东省城建设计院
项目位置:山东省济南市莱芜区吐丝口西路以南,汇林大街以北,冶庄路以东,莱城大道以西
许可建筑面积:274930.83平方米
建设工程规划许可证号:建字第370116202200170号
核发时间:2022年03月10日



项目简介:
本地块位于莱芜区,吐丝口西路以南,汇林大街以北,冶庄路以东,莱城大道以西。总用地面积约为97983㎡,规划总建筑面积276940.11㎡,其中地上建筑面积204426.48㎡(住宅建筑面积183909.02㎡,配套公建建筑面积2715.40㎡,商业建筑面积17701.13㎡,地下车库出地面建筑面积100.93㎡);地下建筑面积72513.63㎡。规划容积率2.09,建筑密度19.51%,绿地率30.05%,规划总户数1766户。
本次申请1-27#住宅楼、配套、商业(不包含8#楼3层商业处),28#配套公建,东大门、西大门、北大门,地下车库建设工程规划许可,建设规模为274930.83平方米。
基地内拟建客体建筑A1-A27#楼中:A1#楼2层自西向东第2户(共1户)不满足至少一窗大于3h,满足至少一窗大于2h;A1#楼3层自西向东第1-2户(共2户)不满足至少一窗大于3h,满足至少一窗大于2h;A1#楼4层自西向东第1户(共1户)不满足至少一窗大于3h,满足至少一窗大于2h;A7#楼自西向东第4户1-2层(共2户)不满足至少一窗大于3h,满足至少一窗大于2h;A14#楼自西向东第3户(共1户)不满足至少一窗大于3h,满足至少一窗大于2h;A15#楼自西向东第3户(共1户)不满足至少一窗大于3h,满足至少一窗大于2h;A20#楼自西向东笔4户1-8层(共8户)不满足至少一窗大于3h,满足至少一窗大于2h;A22#楼自西向东第2户(共1户)不满足至少一窗大于3h,满足至少一窗大于2h,日照不足3小时的户数为17户,占规划总户数(1766户)的0.96%。除上述住宅外,其余规划住宅的日照符合日照规定要求。




